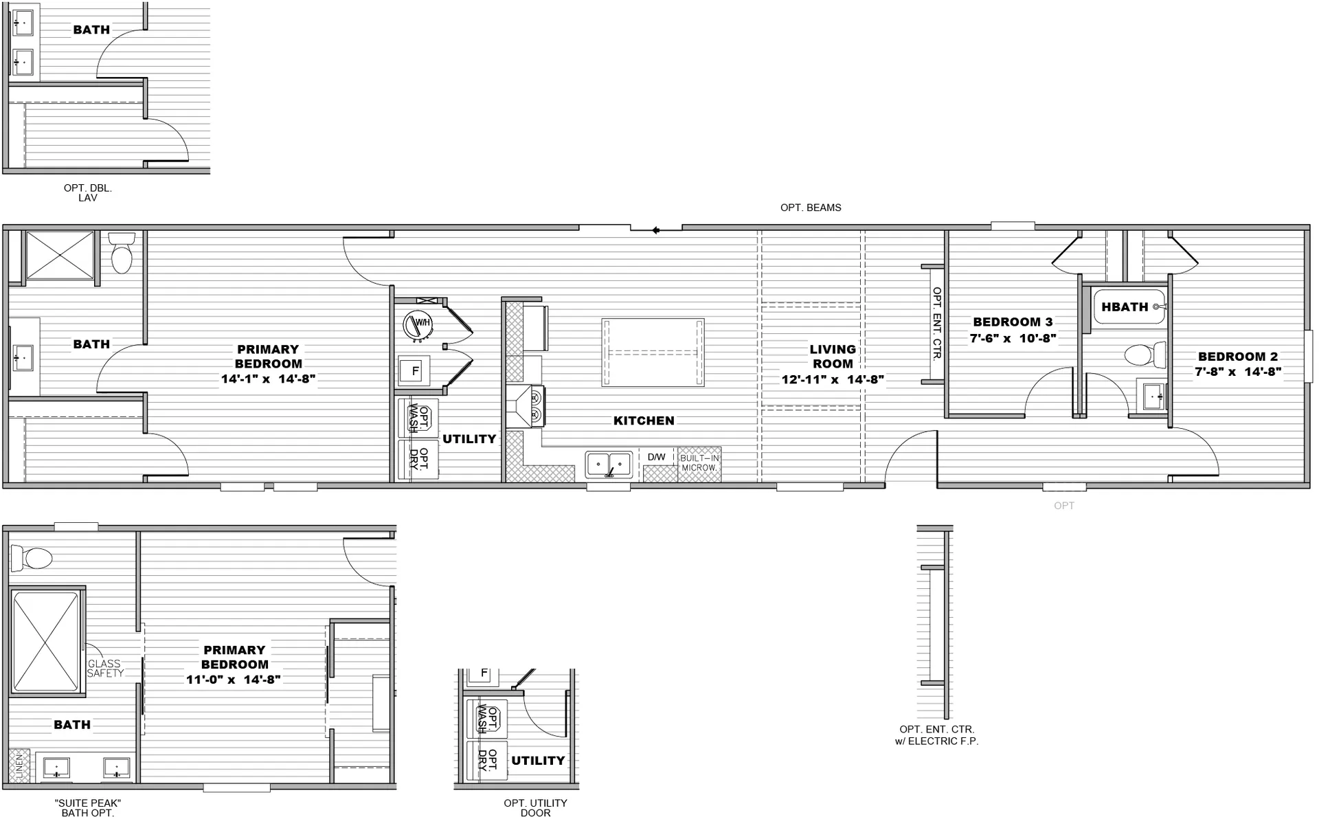
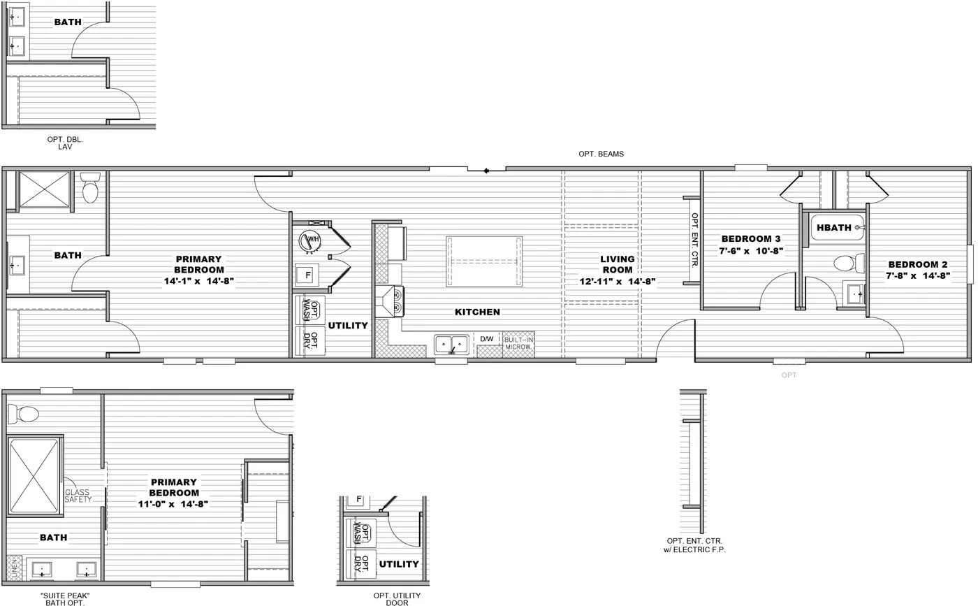
THE SMOKEY
Floor Plan
- IN STOCK
- NEW ARRIVAL
The Smokey
WAS $87,842
3 beds
2 baths
1,190 sq. ft.
Floor Plan

We accept trades!
Find a new home you love? Contact us for more information about our trade-in requirements and to schedule your free trade evaluation.
Learn More






















